•  
    Referenzen
     
     

Freiraumkonzept Gestaltungsplan Furtbach

Objekt

Eschenz, Freiraumkonzept Gestaltungsplan Furtbach

Erstellungsjahr

2025

Auftraggeber

SJP Bau AG / Rütimann Hoch und Tiefbau AG

Projektbeteiligte

Bischoff & Partner Architekten

Leistungen bhateam

Strategische Planung, Vorstudie, Freiraumkonzept zum Gestaltungsplan

Projektleitung

Angela Bauer, BSc in Landschaftsarchitektur BSLA

Projektbeschreibung

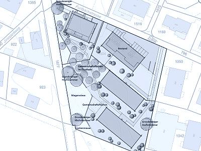
Für das Planungsgebiet im Süden der Gemeinde Eschenz (Parzellen Nrn. 938, 1520, 1404 und 1519) wurde ein Richtprojekt Freiraum erarbeitet. Dieses bildet eine zentrale Grundlage des Gestaltungsplans,  der durch die bhateam ingenieure ag erarbeitet wurde. Das Richtprojekt Freiraum zeigt auf, wie der Aussenraum im Übergang zwischen Siedlung und offener Kulturlandschaft entwickelt werden kann.

Ausgangspunkt bildete eine vertiefte Analyse der landschaftlichen und kulturhistorischen Gegebenheiten. Die Umgebung ist geprägt durch die Hanglage mit gut ablesbaren Ackerterrassen sowie durch typische Streuobststrukturen. Diese prägenden Elemente wurden bewusst aufgenommen und in die Freiraumplanung integriert. Das Element des bestehenden Obstgartens wird im Freiraumkonzept übernommen und als identitätsstiftender sowie ökologisch wertvoller Bestandteil weiterentwickelt.

Ziel ist eine zurückhaltende, ortsbezogene Entwicklung, welche den sensiblen Übergang zwischen Siedlung und Landschaft stärkt.